Connections Design is an experienced architectural and interior design practice, formed in 1986. The team is managed with the company’s original aspirations of approachability, integrity and enthusiasm. We operate from studios in Whitchurch, Cardiff and have a mixture of design flair, technical knowledge, youth and experience, strong project control and communication skills.
Our consistent aim is to offer our clients effective ways of fulfilling their project’s objectives by offering distinctive and well considered design solutions that are then complimented and enhanced by sound technical review to ensure a high quality build. We achieve this through clear and effective visual and verbal communication and all projects are an intermixture of design and construction, cost control, speed of completion and quality of finish.
The following pages show visitors a graphic version of our approach to a typical project’s evolution and its progress to completion. It is not intended to be a laborious ‘staged’ descriptor of precisely what is required to create a well considered project, but rather an array of sketches, computer models, images and technical detailed drawings with a ‘voice over’ text to explain what we do and how we approach each stage of a construction project.
Our team spirit and an enthusiasm for a high quality project, encompassed within a professional approachable and friendly group is appropriate for a huge variety of projects.
Clearly more detailed assessments and descriptions of any project’s individual requirements will be discussed when we meet; but we hope that the following sheets offer prospective clients a snapshot of the process of taking a project to completion that will encourage them to give us a call!
Whilst the work ethic overrides; our team are also committed to the process of design and construction being an enjoyable one for the client and design team alike.
To this end we also hope to offer a process that is an intellectual and social stimulus and that everyone enjoys the ride! Many of our domestic and commercial clients have become long term 'friends' and ‘recall’ to review new projects is frequent!
We have full commitment to the use of current technology and software, but have not ignored the benefit of the ‘old school’ pencil and hand drawing skills. The office's individual workstations are networked and communication throughout the office is strong at all times.
All members of our small team aspire to having an element of ‘all project knowledge’ and as such, a hands on approach is maintained throughout the company. We have established a distinguished client base in Wales but are also able to work in all areas of the UK and Europe and have recently commenced or completed quality schemes in Nottingham, Reading, Cotswolds, the West Country and London. We have also completed projects in Galway and Cork in Ireland.
The following pages show the key sections of work that are always required, together with a range of images and details that are relevant to each workstage.
1. evaluate
the process of meeting, briefing, understanding and considering the projects needs
2. create
resolving and creating the initial conceptual ideas through to a planning application
3. form
specific design and technical detailing towards a building regulations submission
4. construct
the finalising of project detail and a team to initiate and complete the construction
Or just skip to our gallery here
The design brief acts as the factual foundation of the project and it is essential at this key stage to establish the client’s real needs, objectives and priorities.
Our team have a constant focus on the importance of the client as an integral part of the evolving concept. We aim to review the client’s aspirations, gain their confidence and establish an early rapport in order to offer a result that is not just effectual but has design quality.
We devote maximum time to the facet of analysis and design in order to bring out the project’s greatest potential – all opportunities and approaches are methodically considered. This always requires keen involvement from our clients and users and they always have full participation in the design and decision making processes that will fundamentally affect them in their future use of any building or space.
In essence this is a skill of working with people, taking time and trouble to ensure that the correct approach is utilised.
Communication is seen as a strong practice resource.
Our diverse workload demands fresh approaches for all manner of schemes. Our aim is to offer an understanding of any particular project’s problems and individual requirements without preconceived ideas.
The size of projects undertaken is not restricted and we consistently offer an experienced team and skill base to all scales of works. We are well aware of the growth of the small works market where refurbishment, adaptations and fit out projects form well over half of the UK’s construction activity. It is a massive, omnipresent sector that we see as a challenge as our practice is keen to offer appropriate design solutions for all construction schemes and to occasionally 'wave a magic wand' to invigorate.
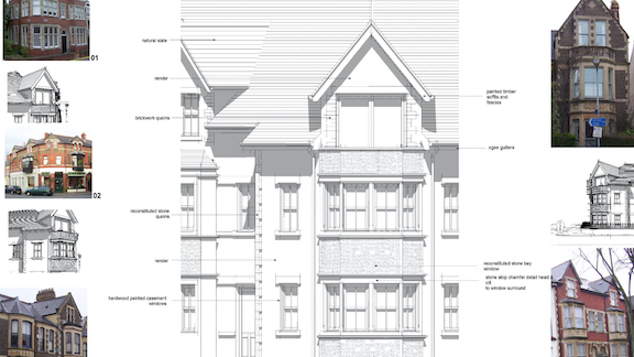
Whilst understanding the client’s and project’s needs are fundamental to the ongoing design process, it is vital to ensure that any project’s attributes are fully understood by all parties - culminating in a convincing package of information to gain planning consent. We use our knowledge of the planning system and consistently produce packages of drawings to attempt to get even the most adventurous of ideas through to an approval.
Gone are the days of sketchy, generic and ambiguous drawings gaining a planning consent. Today’s substantial requisite for detailed thinking and site specific information is the norm - often including a requirement for computerised visuals and 3 dimensional modelling to show a project’s impact on its immediate and local neighbourhood.
Whilst a scheme gaining planning permission allows commencement of the project; this stage also sparks a need for continuation of the original design strategy within the oncoming construction stages.
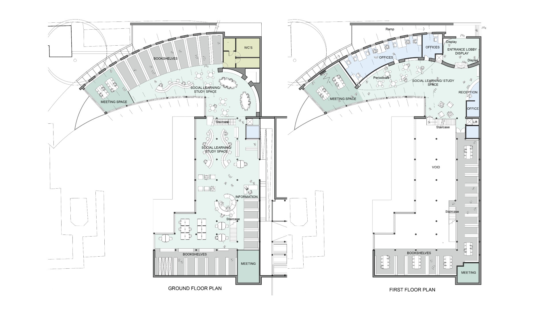
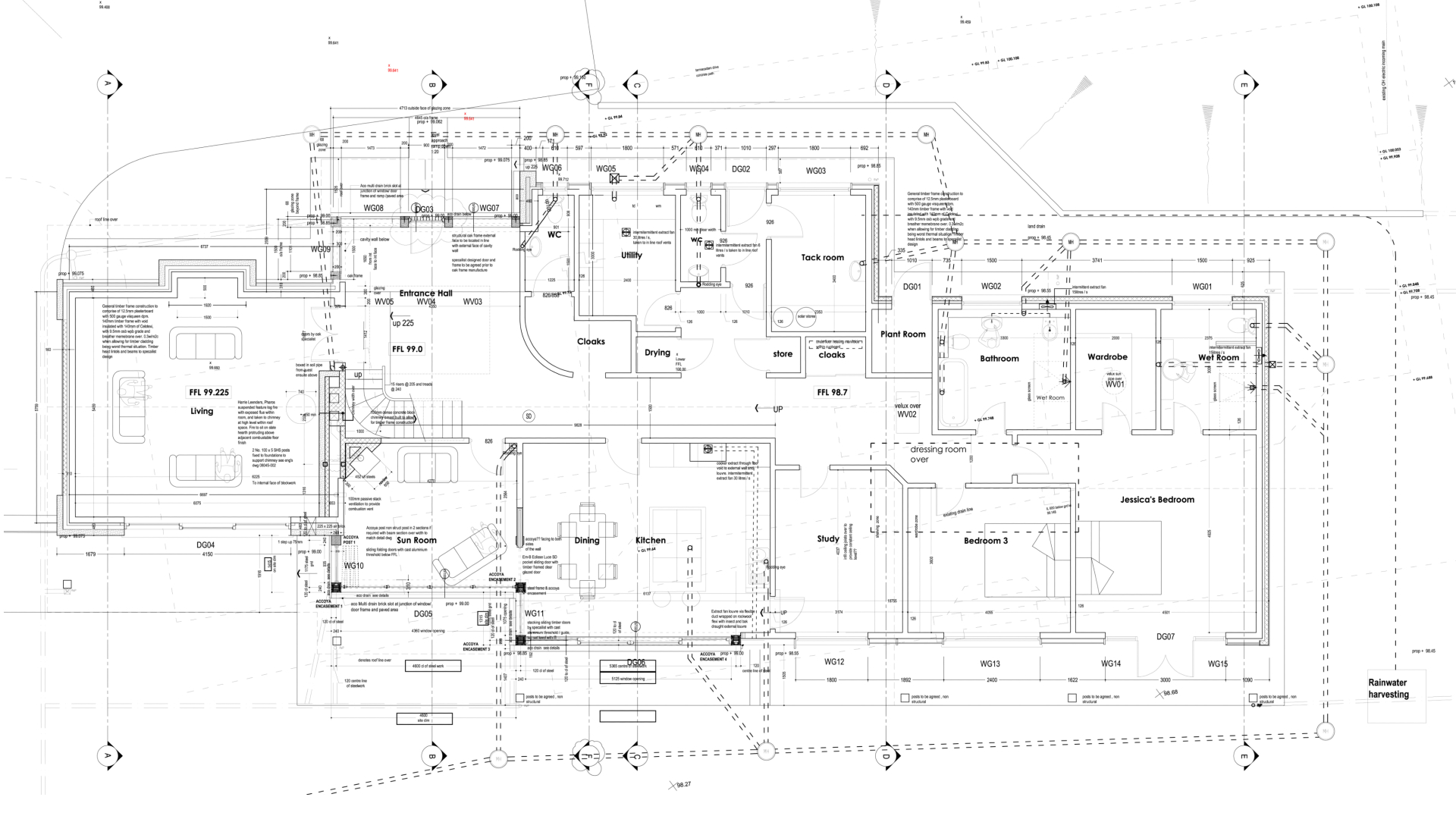
The drawing package required for gaining building regulations approval are another statutory requirement (alongside planning approval) to allow works to start on site. These drawings show the structural skeleton of the building and allow local authorities to approve general construction principles and an ability to prove relevant structural, thermal and principle construction detailing will meet with relevant guidelines. These drawings therefore continue the project’s fundamental design strategy whilst ensuring its ‘buildability’.
Whilst simple domestic project's building regulations are well understood, large projects often need more detailed evaluation with energy calculations and other technical information which may be required from other consultants.
This technical stage allows continuation and control of the project from more detailed analysis via the more generic planning drawings into the real framework for the live project to progress to the construction phase.
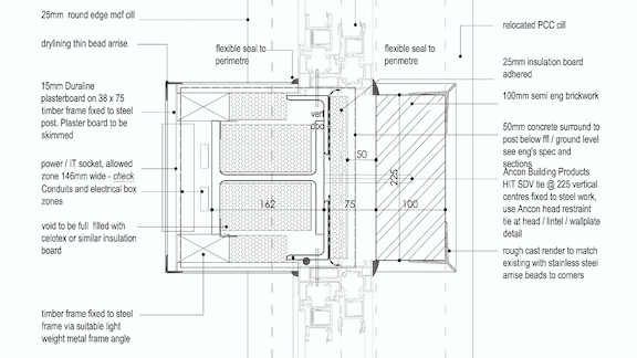
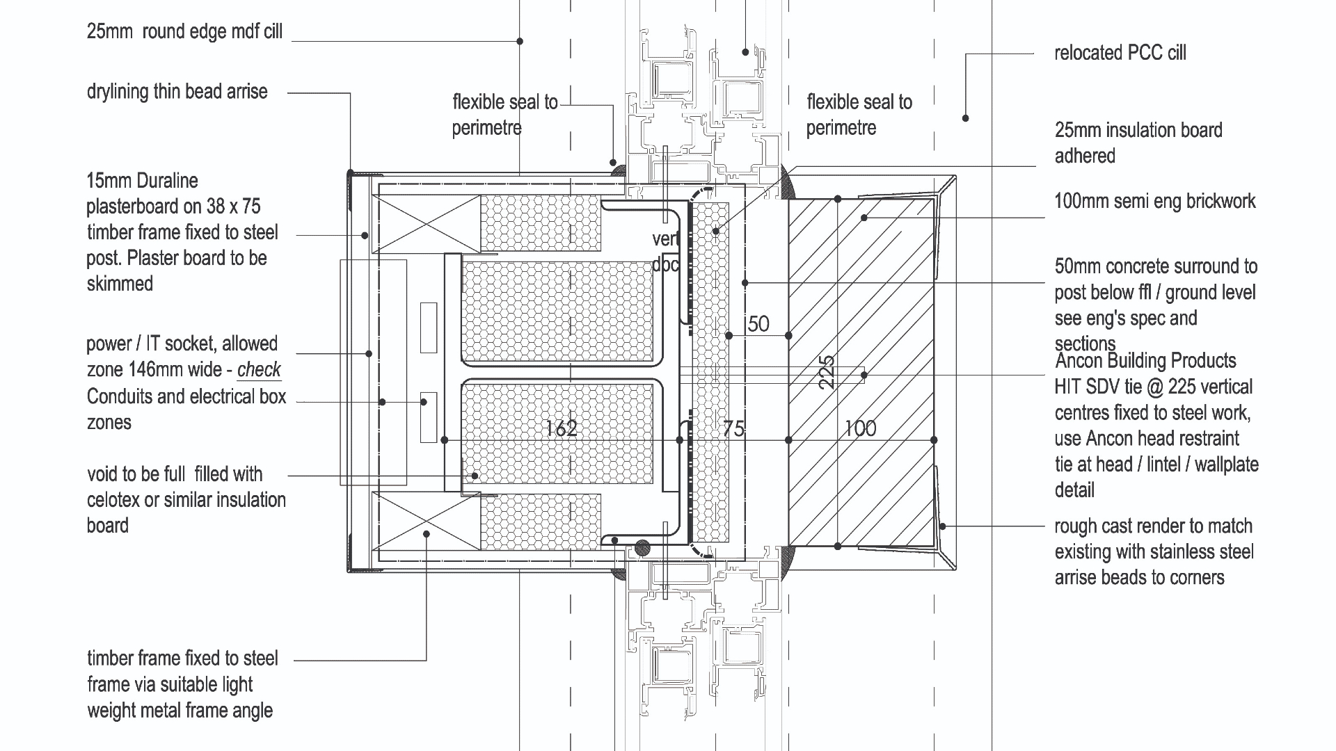
Gaining building regulations submissions with relevant drawings and specifications do not generally require completion of project specific, detailed design drawings. The preparation of this detailed analysis and drawing packages is really the only way to control a project’s quality and to gain accurately priced tenders, showing everything that is required for the scheme in great detail from detailed bathroom studies, lighting layouts and tiling setting out in domestic projects to specific joinery details and detailed construction interfaces for larger commercial schemes.
This detailed stage of work ensures that the construction of the project is completed with high quality and allows tenderers to complete fully detailed cost packages from resolved information. This process ensures that the price offered by contractors is as close to the project’s end value as it can be and that all of the clients specific requirements are shown in full detail. As the project managers say ‘ambiguity leads to dispute’ and so getting this package correctly and accurately prepared gives a level of security that the design, detail and cost is under control.
Connections have worked with all manner of contracting organisations from multi-national building groups to local contractors, specialised fit out teams and artisans. We have also formed excellent working relationships with other possible design team members, structural engineers, cost consultants and building services engineers and our team can be enhanced by inclusion of specialists to suit any specific project demands.
It is essential to ensure that the correct team is considered for the final construction stage, to maintain the integrity of the planned project. Through our deliberate involvement in all manner of projects and our commitment to quality and effective team working, we offer a strong, conjoined approach to ensure that the contractor selected is committed and willing to ‘sign up’ to the original aspirations of the project and as we have previously mentioned - to enjoy the ride. Quality has a distinct correlation to good construction team relationships and mutual respect. To this end, Connections are committed to aiming to break down the archaic barriers between contractor, clients and designers and aspire at all times to give commitment to all projects as team players.
Procurement of building contracts differs enormously for the varying clients and many wide ranging and unique styles of project. We are happy to offer all methods of working, from consortium approaches, design only schemes, design and build or traditional, full architectural services. The prerequisite is that any procurement route needs to conclude with a project of high quality that meets with the client’s original need.
“I recall someone, not unlike Hugh Fernley Whittingstall, (i.e. not fat!-likes his food!) who does the sort of job that gets the University’s hierarchy spouting great compliments to the "Designers" and "Estates team". This has now been the case on both the Post grad job last year and the HESAS scheme this year.”
Wyn Williams, University of Glamorgan
"It's been great working with you and what is particularly good is that all other librarians I know - complain that when their spaces are being redesigned they don't get a chance to speak to the architects or that the architects force their own plans on them - you and your team are definitely not like that and are very good at listening!”
Sally Wilkinson, Trinity College
“I would like to compliment the work carried out by Connections Design. I am well impressed with the transformation of the building.”
Jon Dark, HCD Building Control
“An outcome based practice, who proactively generate an involving team approach with Contractors, applying refreshingly high levels of support and rigorous attention throughout construction and who thus both inspire and facilitate optimum project delivery.”
Owen Cook, NAP Property Services
“It has been a refreshing experience to work with a boutique architectural agency like Connections Design. They listen, they understand and they perform.”
Mitchell Field
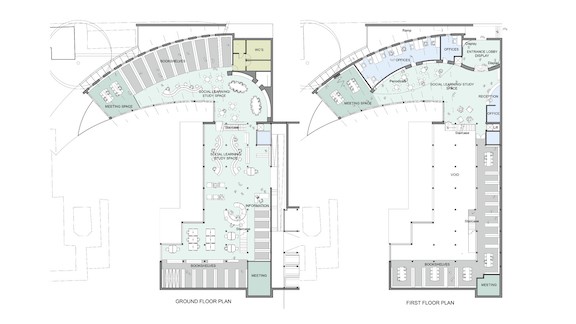
"Thank you very much for another project of exceptional quality delivered painlessly. Working with Connections Design was a stress free experience and all project deadlines were achieved on time. I found the company easy to work with, they were considerate to the needs and wishes of the many end users of the building. Their knowledge and feel for what suited the project was very welcomed and they successfully delivered all they promised. The building has been transformed! The design has successfully merged the functionality of a catering provision with social learning space, which is now heavily utilised by students. I would have no hesitation in recommending them for any future projects."
Helen Anzani, Catering Services Manager, University of Glamorgan
Ark Learning / Nursery Centres - Galway/Cork, Asbri Planning, Bridgend County Council, BBC, Capital Properties, Community Care Enterprises, Carcraft, Cardiff Bay Development Corporation, Cardiff Bus, CBS Recording, Chemical Bank, CPS Homes, Copthorne Hotels, Cardiff County Council, Cottrell Park Golf Club, Edmunds Webster, Evangelical Theological College of Wales, Future Industrial Ltd, Garry Evans Fishing, Gooding Enterprises, Glamorganshire Golf Club, Good Pub Company, GQ Parachutes plc, Greystone Developments, Insight Homes, Investment Construction, Jehu Projects, Jones Lang La Salle, Leadbitter Homes, Macob, Millennium Stadium PLC, Nottingham University, Neil and Glenys Kinnock!, Owen Banks Planning Consultants, Oakmasters, PwC, Royal Regiment of Wales Museum, Robbie Savage, Royal College of Nursing, Rhondda Cynon Taff Council, S4C, SA Brain, Spire Hospitals, Tenneco Walker, Taylor and Sons, Sir Tom Jones!, Trinity College - Carmarthen, University Union - Cardiff, University of Glamorgan, University of Wales Institute Cardiff, University of Wales College Newport, Watkin Davies Insurance, Waterstone Homes
The drawings and narrative above has hopefully conveyed our fully controlled service through the relevant key stages - from initial client meeting to project completion.
To amplify the process, we have divided some images of our recent workload into general headings which should show the variety of design and drawing tools that are used at each stage of a project’s progression through the various work stages towards project completion. It shows how the original analysis and conceptual sketches progress into more detailed information required for the build process. There is a high quality of information produced at every stage.
If you are ready to start your next project with us please give us a call or send us an email and we will get back to you as soon as possible!
Office: 029 20 626 521
Paul Hutchison: 0776 4576 341
office@connections-design.co.uk
Connections Design
21 Penlline Road
Whitchurch
Cardiff CF14 2AA